Skip to Content

BPC-023 Fence Requirements

Permit and Resource Management Department Banner 750

Version 02/05/2020

Purpose

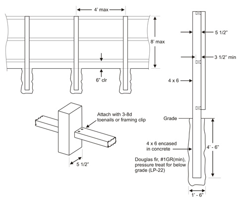
Fences are regulated by building and zoning codes and may require a building permit and a use permit depending upon the fence height and location. A building permit is required for all solid wood, concrete and masonry fences exceeding seven (7) feet in height, and all fences, regardless of construction, exceeding ten (10) feet in height. A site plan must be prepared and submitted showing the location of the proposed fence (see form CSS-019). Below is an approved design for a maximum eight (8) foot high fence. This design may be used in lieu of a design by an engineer or architect. Fences exceeding eight (8) feet in height must be designed by an architect or engineer.

Although a building permit is not required for all fences, a use permit may be required if a fence over three (3) feet in height is proposed within the front yard set back. These determinations will be made by Permit and Resource Management Department planning staff. A site plan showing the location of the proposed fence may be required to make these determinations.

Fence Requirement